1-кімн. кв., 35 м², 1/16 поверх
41 000 USD • 2.5% комісіяКиїв, Деснянський, Червоної Калини проспект, 5 • На мапі
Троєщина
Кімнат1
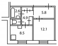
Площа35 м²
Житлова12 м²
Кухня8.5 м²
Поверх1 з 16
Продам 1 кімнатну квартиру просп. Червоної Калини 5. Троєщина
Санвузол роздільний, просторий передпокій, металопластикові вікна, решітки. Шафа купе. Лічильники води, тамбур. Вікна на парк. Зручна транспортна розв'язка. Розвинена інфраструктура. Можливий торг.
БалконНі
ЛоджіяНі
Роздільний санвузолТак, 1
Суміщений санвузолНі
РемонтКосметичний
ОпаленняЦентральне
Горяча водаЦентральна
Гараж або паркінгНі
Тип об'єктуОкрема квартира
Тип проектуПанельний
Id оголошення755180
Поділитися
41 000 $

АН 'Купидом Плюс'

















































